Save
Ask
Tour
Hide
Share
$1,099,000
New Listing

University Towne Square
4353 Nobel Drive 65
San Diego, CA 92122

For Sale|Townhouse|Active
2
Beds
3
Total Baths
2
Full Baths
1
Partial Bath
1,766
SqFt
$622
/SqFt
1987
Built
County:
San Diego
Listed by Farryl Moore of Coldwell Banker Realty (858) 395-5813

Due to the health concerns created by Coronavirus we are offering personal 1-1 online video walkthough tours where possible.

Upcoming Open Houses
Due to COVID-19, we recommend you verify Open Houses before attending.
Sat, Mar 28, 1:00 PM - 4:00 PM
4353 Nobel Drive 654353 Nobel Drive 654353 Nobel Drive 654353 Nobel Drive 65
Save
Ask
Tour
Hide
Share

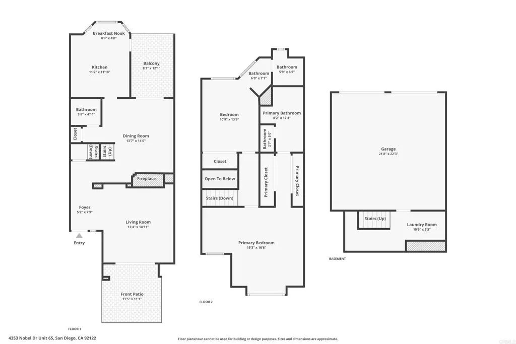
Located in the heart of UTC, this split-level townhome offers dual ensuite bedrooms, abundant natural light, and a warm, welcoming feel. Set in one of San Diegos most convenient locations, the home combines a highly functional layout with a strong sense of comfort and community, just moments from shopping, dining, transit, and easy access across the city. The entry level welcomes you into an inviting living room anchored by a fireplace, creating a natural focal point for relaxing or gathering with guests. High ceilings and great light enhance the space, while the front patio extends the living area outdoors for morning coffee or quiet evenings at home. Above the living room, the split-level design opens to an elevated main living area that feels connected while still offering natural separation between spaces. This upper level enjoys a lofted perspective over the living room below, enhancing the homes light, volume, and overall sense of openness. At its center is the dining room, which flows seamlessly into the recently upgraded kitchen with new cabinetry, stainless steel appliances, and an adjacent breakfast nook. The enclosed upper patio is easily accessed from both the nook and dining area, creating a flexible bonus space for indoor outdoor living. Upstairs, both bedrooms feature ensuite baths, offering an ideal layout for privacy and flexibility. The front bedroom serves as the true primary suite, with a larger footprint and dual closets, while the secondary suite is well suited for guests, roommates, or a home office. Below the entry level, the home also includes a dedicated laundry area, additional storage, and direct access to the attached two car garage entered from the rear. Located across from the community pool and mailboxes, this home is just minutes from Westfield UTC, the new trolley station, UCSD, major freeways, restaurants, grocery stores, and nearby financial and high-tech employers.

Save
Ask
Tour
Hide
Share
Listing Snapshot
Price 
$1,099,000
Days On Site 
0 Days
Bedrooms 
2
Inside Area (SqFt) 
1,766 sqft
Total Baths 
3
Full Baths 
2
Partial Baths 
1
Lot Size 
N/A
Year Built 
1987
MLS® Number 
NDP2602807
Status 
Active
Property Tax 
N/A
HOA/Condo/Coop Fees 
$624 monthly
Sq Ft Source 
N/A
Friends & Family
Recent Activity
2 hours agoListing updated with changes from the MLS®
4 hours agoListing first seen on site
General Features
Disclosures 
Homeowners Association
Garage 
Yes
Garage Spaces 
2
Number Of Stories 
3
Parking 
Garage
Parking Spaces 
2
Property Sub Type 
Townhouse
Sewer 
Public Sewer
Special Circumstances 
Standard
SqFt Total 
1766
Zoning 
R1
Interior Features
Appliances 
DishwasherMicrowaveRefrigeratorElectric OvenFreezer
Fireplace Features 
Living Room
Save
Ask
Tour
Hide
Share
Exterior Features
Patio And Porch 
Patio
Pool Features 
Community
Community Features
Association Amenities 
BarbecuePool
Association Dues 
624
Community Features 
Sidewalks
Financing Terms Available 
CashConventionalFHAVA Loan
HOA Fee Frequency 
Monthly
School District 
San Diego Unified School Distric
Schools
School District
San Diego Unified School Distric
Elementary School
Unknown
Middle School
Unknown
High School
Unknown
Listed by Farryl Moore of Coldwell Banker Realty (858) 395-5813



This information is deemed reliable but not guaranteed. You should rely on this information only to decide whether or not to further investigate a particular property. BEFORE MAKING ANY OTHER DECISION, YOU SHOULD PERSONALLY INVESTIGATE THE FACTS (e.g. square footage and lot size) with the assistance of an appropriate professional. You may use this information only to identify properties you may be interested in investigating further. All uses except for personal, non-commercial use in accordance with the foregoing purpose are prohibited. Redistribution or copying of this information, any photographs or video tours is strictly prohibited. This information is derived from the Internet Data Exchange (IDX) service provided by San Diego MLS®. Displayed property listings may be held by a brokerage firm other than the broker and/or agent responsible for this display. The information and any photographs and video tours and the compilation from which they are derived is protected by copyright. Copyright © 2026 San Diego MLS®.

Last checked 2026

Neighborhood & Commute
Source: Walkscore
Save
Ask
Tour
Hide
Share